Дом, Москва, Москва, 56 500 000

0

Кратко

Тип Дом
Регион Москва
Город Москва
Этажность 2
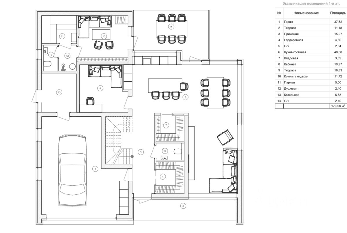
Площадь общая (м2) 242.1
Площадь участка (сот.) 5
Подходит под ипотеку Да
Скидка на ипотеку Да
Новый дом с Московской регистрацией для вашей семьи в Ватутинках! В доме никто не прописан, один взрослый собственник. Продаётся двухэтажный дом с панорамным остеклением площадью 242 м2 (в реальности 260 м2), на ухоженном участке 5 соток в СНТ Искра-2. В доме сделан ремонт в современном стиле с применением импортных высококачественных материалов: по стенам моющаяся краска, мдф панели, на полу паркетная доска и керамогранит. Дом полностью меблирован и оборудован всей необходимой бытовой техникой. Первый этаж: - просторная прихожая; - кухня-столовая (с отдельной кладовой); - гостиная; - кабинет; - санузел; - гараж; - котельная. В зоне кухни-столовой выход на террасу и баню, с отдельной комнатой отдыха. Второй этаж: - Мастер-спальня с гардеробной и санузлом; - детская спальня; - гостевая спальня; - гостевой санузел; - постирочная. Коммуникации: - Магистральный газ (газовый котёл Ferroli, бойлер Ferroli на 200 л.); - Центральная канализация; - Вода из собственной скважины с многоступенчатой системой очистки; - Современная мульти-сплит система кондиционирования; - Канальная вентиляция; - Водяные теплые полы; - Вокруг дома дренажная система и система отвода ливневых вод. Локация: Ватутинки — это Новая Москва, всего в 15 минутах от столицы. Ближайшая станция метро Прокшино - 15 минут на автомобиле. К 2030 году планируется открытие метро Ватутинки в 15-20 минутах ходьбы от дома. Поблизости государственные и частные школы, детские сады, магазины ( пешая доступность). Удобный асфальтированный подъезд круглый год.

Карта

Похожие

61 500 000
Дом
Площадь м2: 228//
Этаж: 0/3
39 000 000
Дом
Площадь м2: 160//
Этаж: 0/2
23 000 000
Дом
Площадь м2: 223//
Этаж: 0/2
29 500 000
Дом
Площадь м2: 180//
Этаж: 0/2
18 900 000
Дом
Площадь м2: 100//
Этаж: 0/2

Установка успешна

Поздравляем с успешной установкой движка

Читать